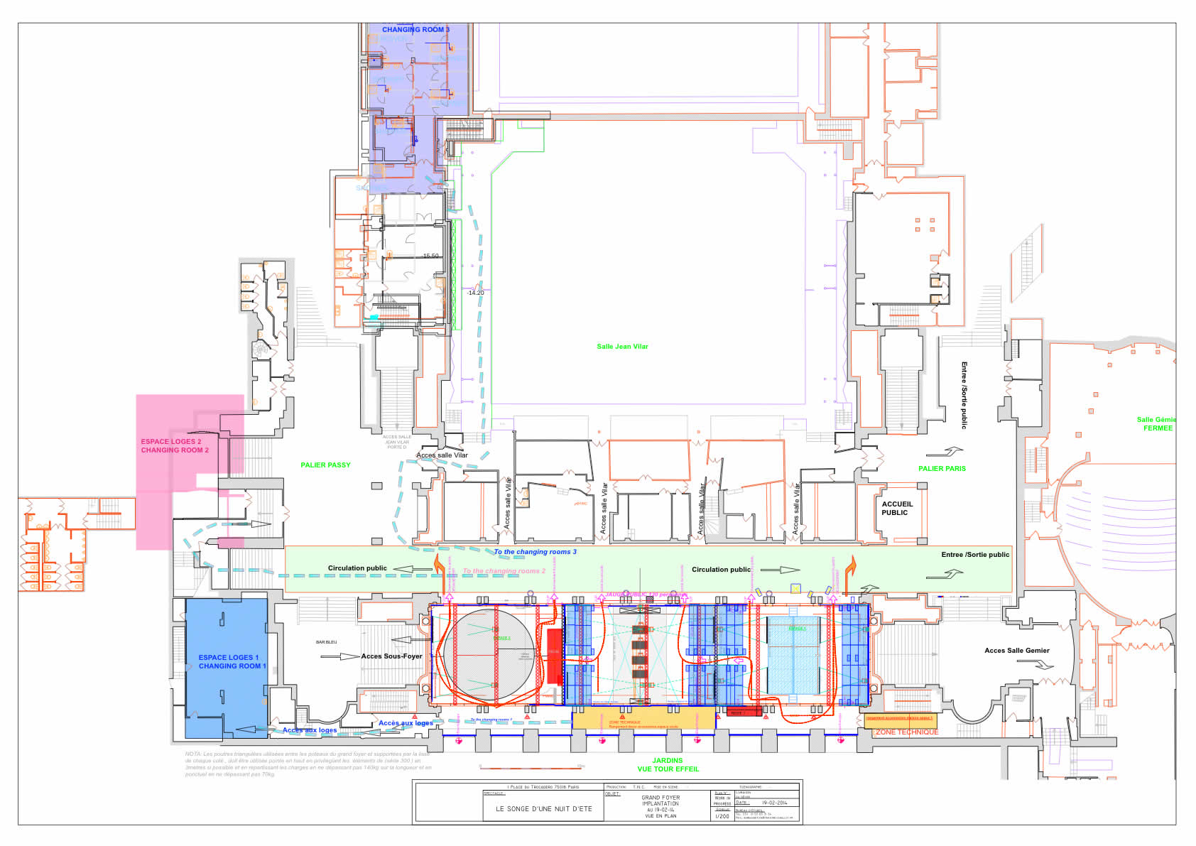
Installation équipement scénique – Gradins /scène au Grand-foyer- TNC, Paris
CONTEXTE
Dans le cadre du Festival de spectacles des pays méditerranéens
PROJET
Pour créer une scène supplémentaire dans l’établissement, il a été choisi d’ implanter dans le grand foyer classé aux monuments historiques, du Théâtre National de Chaillot, une scène de 11m X 11m dotées de coulisses, d’infrastructures pouvant recevoir un lot de projecteurs, draperies, équipements divers et d’un gradin pouvant accueillir le maximum de jauge de 282 personnes, tout en respectant les réglementations ERP pour un établissement de 1ère Catégorie et les contraintes structurelles dans les limites des charges possibles. L’ensemble de l’espace a dû être isolé acoustiquement, car contigu à un lieu de passage, tout en permettant le fonctionnement du système de désenfumage.